Conceptual Renderings and Photos Taken During Construction

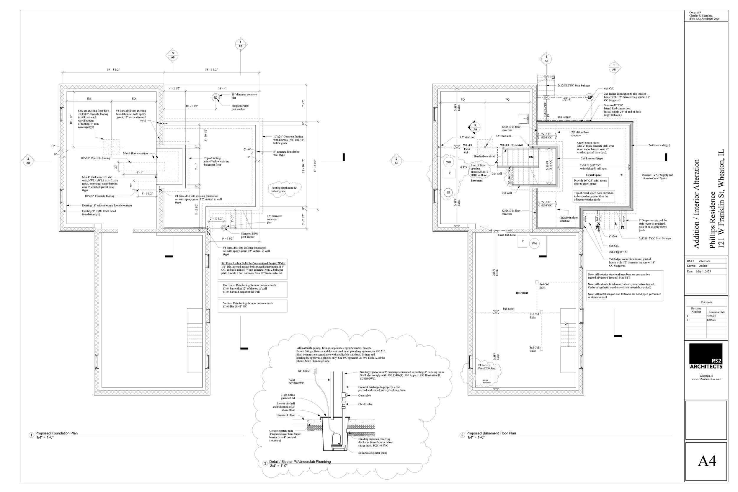
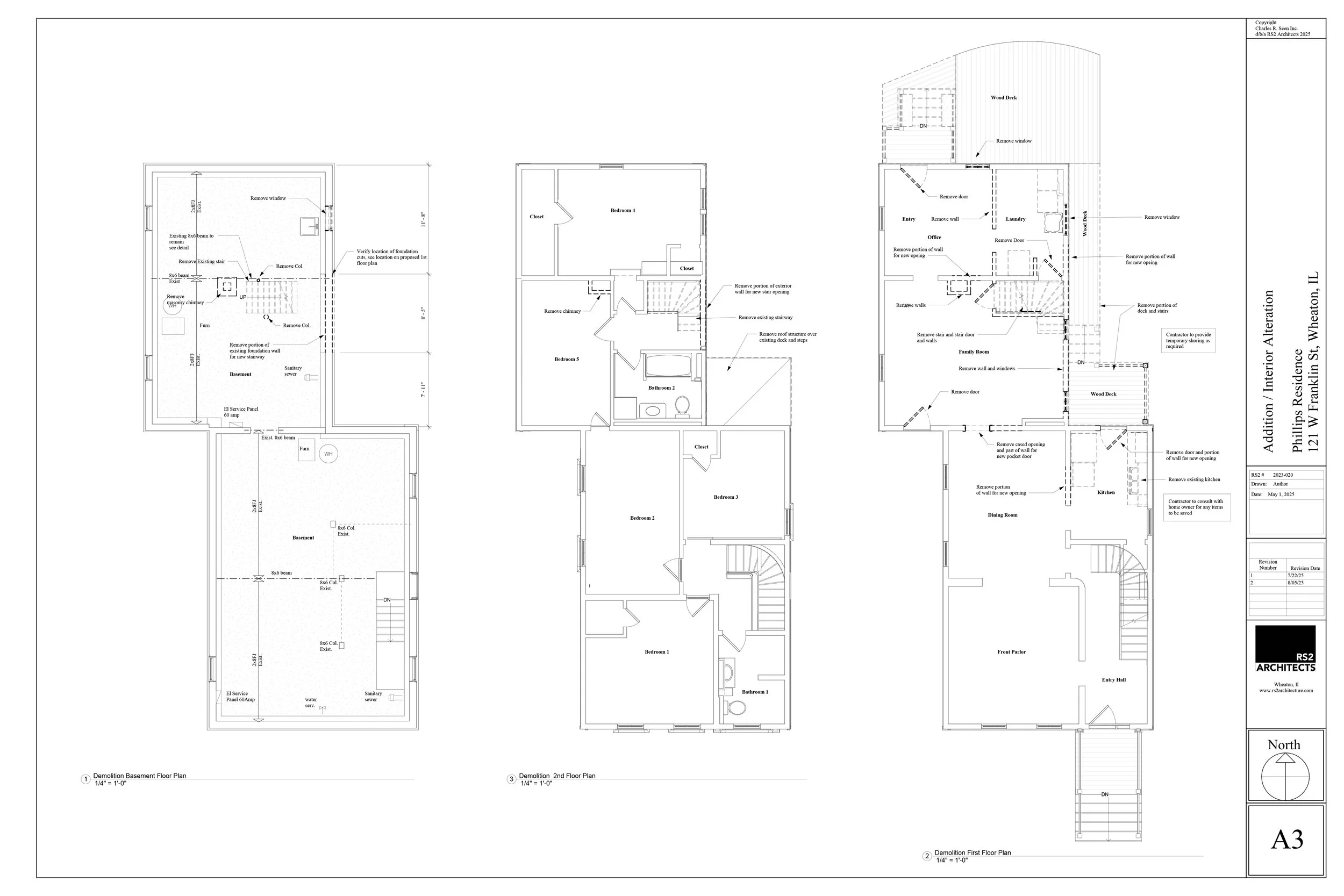
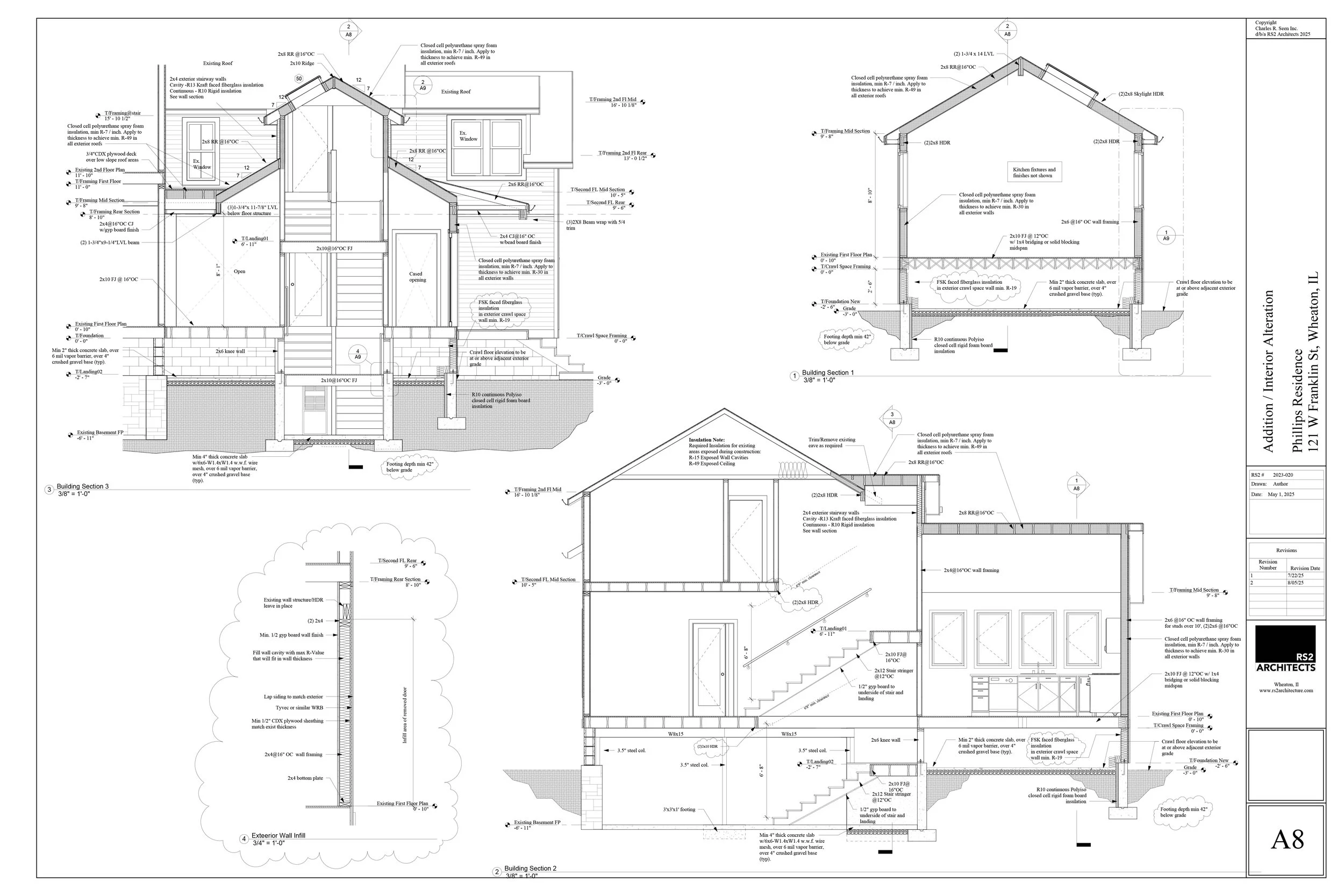
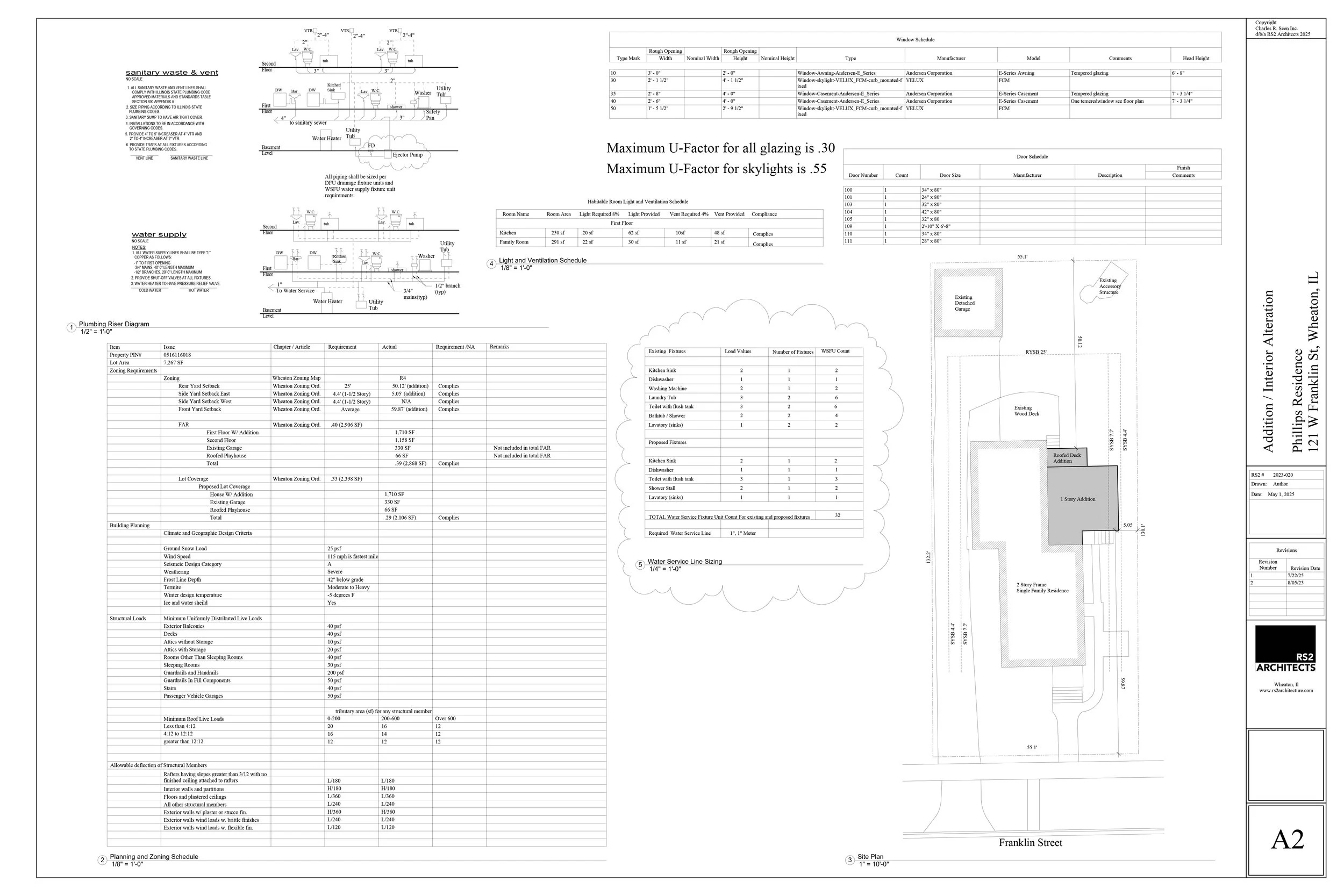
Construction drawings

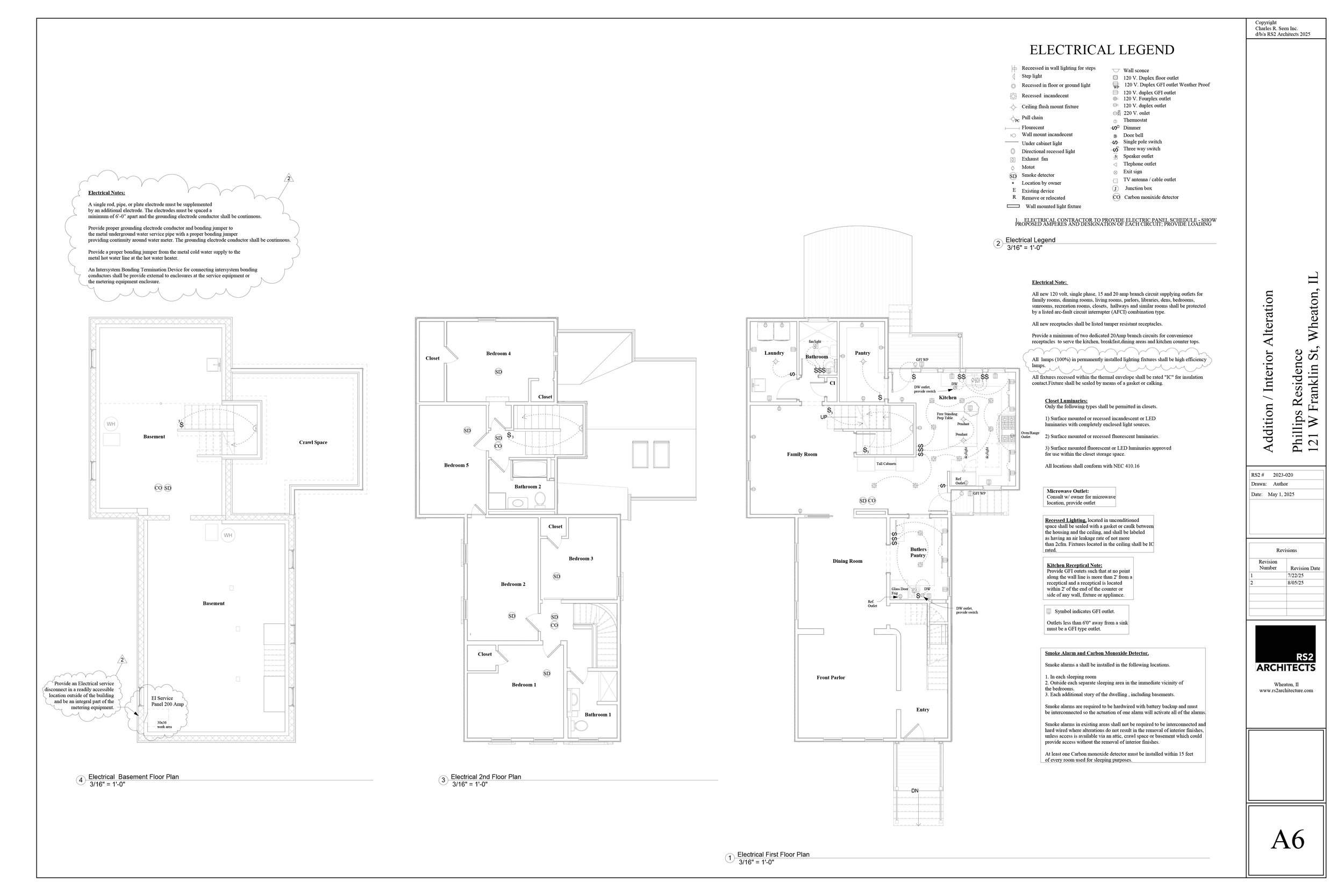
Project Description:
The project involved a thoughtful renovation of a historic home, carefully blending modern functionality with the home's original charm. Central to the design was a dream gourmet kitchen, equipped with high-end appliances, created for a client who is a master chef and had envisioned this space for years. The first floor was extensively reconfigured to improve flow and usability, including the conversion of the former kitchen into an elegant butler’s pantry. Significant structural repairs were undertaken to reinforce and properly support the existing floors, ensuring longevity and stability. Additionally, a new stairway was introduced to provide seamless access to all levels of the home, enhancing both circulation and aesthetic appeal.

Client: Private Client

Status: Construction Completed 2026

Project Data:

Area/Budget: 

Project Team: Project Team: Chuck Seen RS2 Architects (architecture design and construction documents),  
Phil Wolfe Wolfpack Engineering (civil engineering) Dennis Hanzel DWH Construction (general contractor)