Completed Residence
Conceptual Renderings and Construction Documents
Construction Photos
Modern Single Family Residence - Itasca Illinois
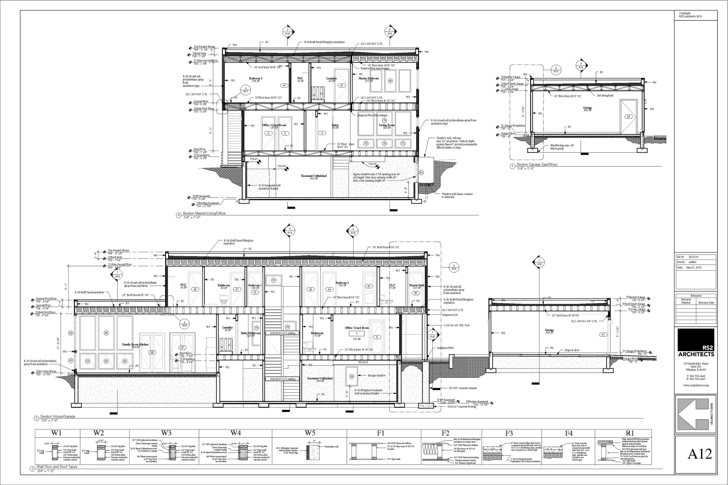
This modern house was designed for a young couple and their collection of modern furniture. Located in Itasca on a long wooded site that backs up to a small lake. The site while long is in close proximity to its neighbors on either side. One of the primary considerations of the design was to address the views towards the lake and create a measure of privacy between the neighbors. Located on the first level are a guest suite and office, and a small formal living area. A small corridor connects to a stairway that descends, following the sloping site, to a large open space that contains the main family room and kitchen. Highlighting the family room is a northern wall of glass 12’ high, looking out to the back meadow and lake. The curtain wall of glass is being developed by Unilux windows from Germany. This curtain wall is triple glazed and has a high insulating quality not yet found with U.S. window companies. The mullions which will hold panes of glass approaching 400 pounds, are a slim 1-1/2” wide, to maximize views. The second floor will contain 4 bedrooms, including a master suite and master bath that has a walk in closet, separate shower, tub and toilet areas. Each bedroom has its own bathroom as well as a walk in closet. Laundry facilities are located on both the first floor mudroom and second floor.
Client:
Private Client
Status:
Project Completed Spring 2016
Project Data:
Area/Budget: approx $150/SF, 4,160SF
Project Team: Chuck Seen, RS2 Architects (Architecture design and construction documents), Johnson Wilbur Adams (Structural Engineering). Dave Johnson and Associates (Civil Engineering), Len Kafer and Associates, (MEP engineering). Tartan Builders, (General Contractor).
Photography of Completed Project:
Mike Mantucca Photography.
www.michaelmantucca.com
